
Pavel Spáčil
+420 603 895 104
pavel@realityspacil.cz
Pouze čtyřpodlažní panelový dům je po energeticky efektivní
revitalizaci:
• zateplení + fasáda + plastová okna + zvětšené balkony se zasklením
(v roce 2010)
• stoupačky (v roce 2023)
• rozvody elektřiny ve společných částech domu (v roce 2020)
Perfektní poloha nad Údolím oddechu, v blízkosti zastávky MHD, supermarketu Albert, bystrckého kulturního centra, knihovny, dětských hřišť atd..
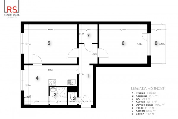
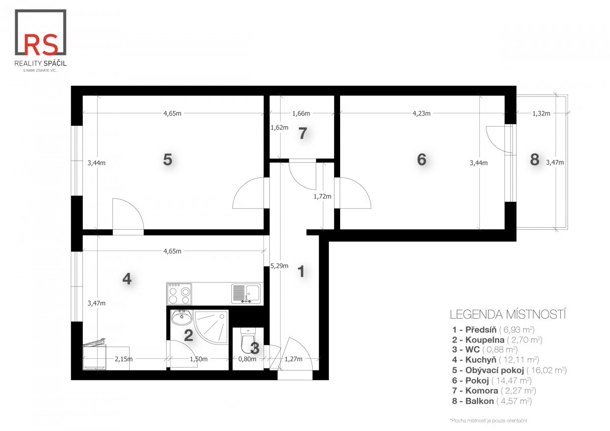
Krajní byt (pouze s jedním přímým sousedem), situovaný ve 3. patře
domu bez výtahu, je udržovaný, v původním stavu (s umakartovým
jádrem).
Disponuje dvěma neprůchozími pokoji s dřevěnými parketovými podlahami,
kuchyní s jídelnou a velmi praktickou šatnou.
Byt je velmi světlý a díky oknům na protilehlých stranách dobře větratelný. Pokoj situovaný východním směrem má přístup na zasklený balkon s fantastickým výhledem na zalesněné kopce obory Holedná.
K bytu náleží rovněž krajní prostorný sklep o výměře 2,23m2 a sdílené prostory kočárkárny a prádelny se sušárnou.
Nízké měsíční náklady.
Pro 2 osoby:
Elektřina: 1.000,–Kč
Plyn (pouze na vaření): 1.000,–Kč
Vytápění: 1016,–Kč
Teplá voda: 330,–Kč
Fond oprav: 1.635,–Kč
Úklid společných prostor: 139,–Kč
Poplatek za zprávu: 163,–Kč
Pojištění a poplatky: 170,–Kč
Nový energetický štítek domu se bude zpracovávat v nejbližší době, do té doby uvádíme nejhorší tř. G.
Benefit: Fond oprav má aktuálně naspořeno cca 2 500 000 Kč a nejsou naplánovány žádné větší opravy či investice. Dům je ve výborném technickém stavu.
Pro domluvení prohlídky či více informací neváhejte kontaktovat uvedeného makléře. Rád Vám pomohu také se získáním výhodného financování.
| Adresa | Brno, Filipova |
| Stavba | Panelová |
| Typ domu | Patrový |
| Stav objektu | Dobrý |
| Umístění objektu | Sídliště |
| Vlastnictví | Osobní |
| Vybavení | Ne |
| Plocha užitná | 58 m² |
Datum aktualizace: 03. 12. 2025