
Pavel Spáčil
+420 603 895 104
pavel@realityspacil.cz
Malý bytový dům pouze 7 bytovými jednotkami má vynikající polohu v klidné ulici, mezi klidovou zónou u rybníku Srpek a centrem města.
V blízkosti naleznete školky, školu, koupaliště s aquaparkem, zimní stadion, sportovní halu, atletický stadion, polikliniku, restaurace, Kaufland a mnoho dalších služeb.
Ačkoliv je byt okamžitě obyvatelný, je vhodný spíše k celkové rekonstrukci a modernizaci.
Obrovským benefitem jsou 2 mimořádně prostorné sklepy v suterénu
domu.
Jeden o výměře 6,7m2 a druhý téměř 12m2, náležící k bytové
jednotce.
Byt má již vyměněná plastová okna a stupačky v plastu.
Dům (rok výstavby 1960) je v dobrém technické stavu, po rekonstrukci
elektrických rozvodů ve společné části domu a nové střechy v rámci
realizované přístavby.
Vytápění je řešeno starším, ale plně funkčním plynovým kotlem
stejně jako ohřev TUV.
Byt disponuje 2 vlastními komíny (na které nejsou napojeny
další byty).
SVJ není zatíženo žádnými dluhy a ve fondu oprav je naspořeno cca
500.000,–Kč.
Mimo výhledově plánované zateplení budovy nejsou třeba žádné větší
investice.
Měsíční náklady:
Vodné, stočné: 320,–Kč
Ostatní (komíny, spol. elektřina, atd.):41,–Kč
Fond oprav: 699,–Kč
Správní poplatek:120.00,–Kč
Plyn: 800,–Kč
Elektřina: 710,–Kč
Město Kuřim (aktuálně s cca 11.000 obyvateli) nabízí opravdu nadstandartní možnosti sportovního vyžití (wellness centrum s letním koupalištěm, zimní stadion, víceúčelová sportovní hala, atletický stadion, golf resort Kaskáda, spousta sportovní oddílů a kroužků), kulturních možností (kulturní centrum s kinem, koncerty, letní kino a všemožné akce na kuřimském zámku) a je skvělým místem k bydlení zejména pro vynikající občanskou vybavenost (školky, školy, obchody, služby) a snadnou dopravní dostupností Brna (zrekonstruované vlakové nádraží, autobusy IDS, autem cca 15min.)
Pro více informací nebo domluvení osobní prohlídky bytu, neváhejte
kontaktovat uvedeného makléře, těším se na viděnou!
P.S.: Rádi Vám pomůžeme také se získáním výhodného financování!
| Adresa | Kuřim, Jungmannova |
| Stavba | Panelová |
| Typ domu | Patrový |
| Umístění objektu | Centrum obce |
| Vlastnictví | Osobní |
| Vybavení | Ne |
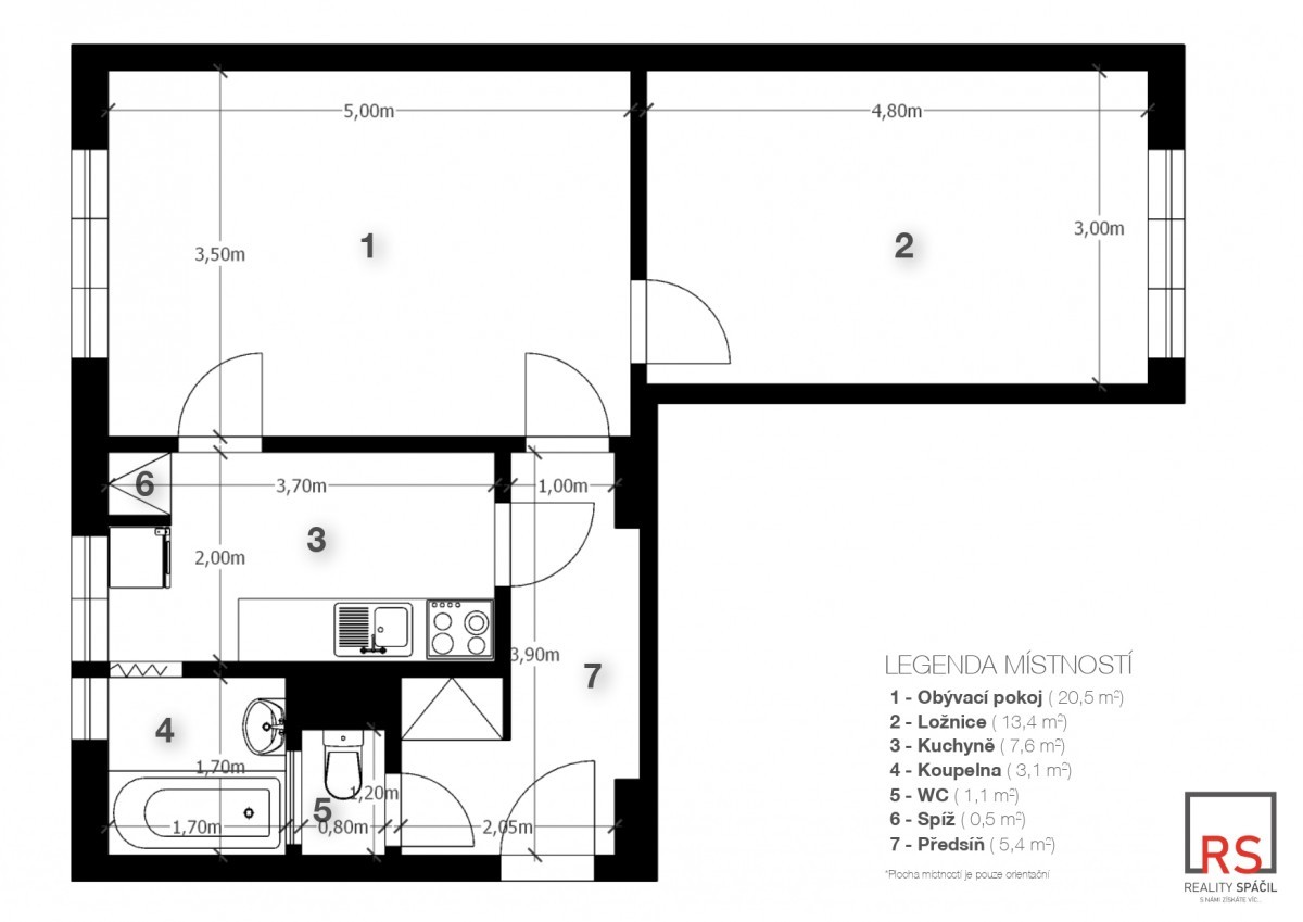
| Plocha užitná | 70 m² |
| Sklep | Ano |
Datum aktualizace: 21. 01. 2026