
Pavel Spáčil
+420 603 895 104
pavel@realityspacil.cz
Pouze čtyřpodlažní panelový dům je po energeticky efektivní
revitalizaci:
• zateplení + fasáda + plastová okna + zvětšené lodžie, zateplení a
izolace střechy
• stoupačky v plastu
Rohový byt, situovaný ve 4. patře domu bez výtahu, v původním stavu (s umakartovým jádrem), je vyklizený a připravený k rekonstrukci.
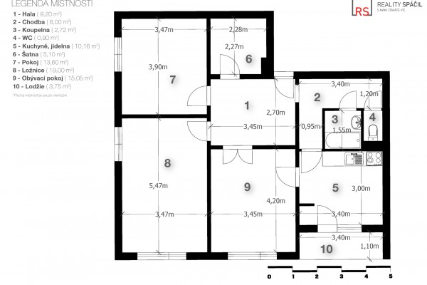
Velkou výhodou může být již schválený projekt na rozšíření
dispozice na 4+1 viz půdorys ve fotogalerii.
Dokumentace, stavební povolení, statický posudek i návrh řešení a
vizualizace k dispozici.
Orientace oken je východním směrem (kuchyně, balkon, pokoj) s výhledem na Brno a jižně (ložnice) s výhledem na smíšené lesy obory Holedná.
K bytu náleží rovněž krajní prostorný sklep o výměře 3,7m2 a
sdílené prostory kočárkárny a sušárny.
Topení jé dálkové (Teplárny Brno) s dálkovým odečtem.
Nízké měsíční náklady.
Pro 2 osoby:
Elektřina: 1.000,–Kč
Plyn (pouze na vaření): 1.000,–Kč
Vytápění: 1622,–Kč
Teplá voda: 330,–Kč
Fond oprav: 940,–Kč
Úklid společných prostor: 123,–Kč
Poplatek za zprávu: 101,–Kč
Pojištění a poplatky: 11,–Kč
Elektřina společných prostor: 84,–Kč
Benefit: Fond oprav má aktuálně naspořeno přes 1 350 000 Kč a nejsou
naplánovány žádné větší opravy či investice. Dům je ve výborném
technickém stavu.
Prostor pro výtahovou šachtu v domě je, případná realizace závisí na
dohodě vlastníků bytových jednotek.
Lokalita: Jundrov – Život v harmonii s přírodou.
Jundrov je ideální volbou pro ty, kteří hledají klidné a zelené bydlení
s výbornou dostupností do centra Brna. Čtvrť je obklopena rozsáhlými lesy
a zelenými plochami, přitom Vám nabízí kompletní občanskou vybavenost
(školy, školky, obchody). Díky blízkosti řeky Svratky a cyklostezek je
Jundrov rájem pro aktivní odpočinek. Zde získáte to nejlepší z obou
světů: ticho přírody a komfort města.
Pro domluvení prohlídky či více informací neváhejte kontaktovat
uvedeného makléře.
Rád Vám pomohu také se získáním výhodného financování.
| Adresa | Brno, Šeříková |
| Stavba | Panelová |
| Typ domu | Patrový |
| Stav objektu | Dobrý |
| Vlastnictví | Osobní |
| Vybavení | Ne |
| Počet podlaží | 4 |
| Plocha užitná | 86 m² |
Datum aktualizace: 16. 12. 2025